Student Designed Rain Catchment System

 

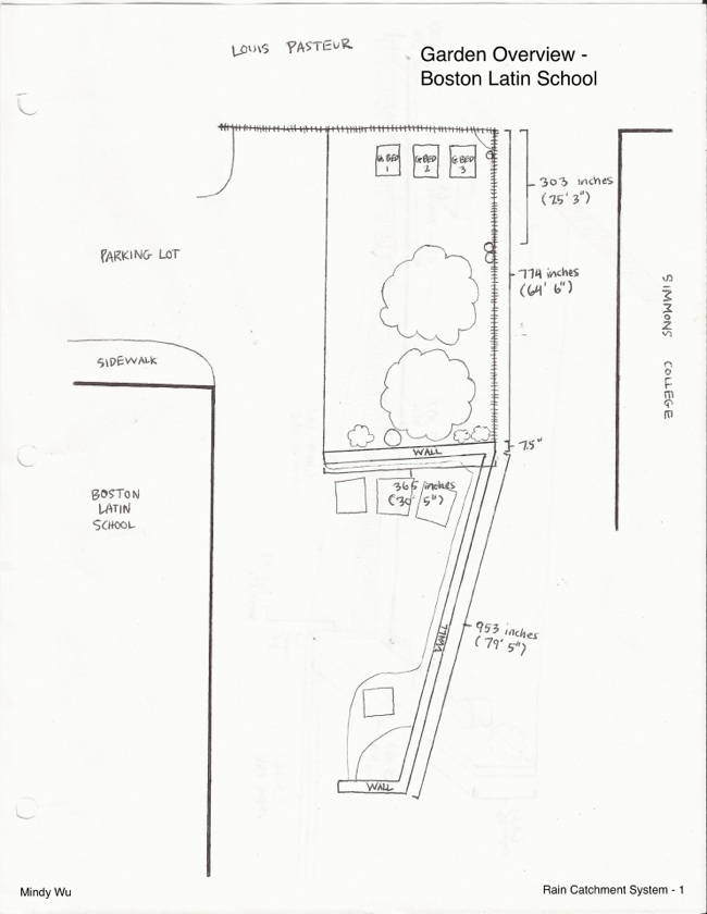
This is a general overview of Boston Latin School’s YouthCAN Garden with measurements.

This is another view of the garden from a different standpoint, also with measurements.


The two barrels near the three garden beds are for storing rainwater. The distance from the barrels to the wall has been measured because that is where the gutter will run.

This is a bird’s eye and ground view of where the gutter for the system will run – along the wall and along the fence, as well as one larger section that will slant down next to the wall for greater surface area and catchment. You can see in this drawing that the gutter, represented by dark shading, runs straight down to the barrels.


There are no measurements for this sketch because we do not know the exact distances for the gutter, nor do we know what supplies and materials Home Depot will have.

This is one possible way the gutter will be kept in place along the wall. The contraption was kept as simple as possible so it would be easy to construct and easy to tweak.


The plank the gutter will be on top of should be adjustable. It should also be able to pivot in the middle – that way, it will automatically set to the right angle and we do not need to worry about more measurements. It can be set later with screws.


We estimate there will need to be anywhere from 5 to 10 of these along the wall to support the gutter.

This is a close-up look at the largest part of the rain catchment system, which will essentially be a wide board of some sort that slants down from the wall to provide more surface area.


In order to support that section, there may be poles underneath it hammered into the ground. Most of the board’s weight will rest on the grid, which will be transferred to the poles and then the ground and therefore provide good stability.


Since we are not sure what this section will look like exactly, this is only a preliminary drawing.

Similar to page 5, the part of the gutter running along the fence will also be supported by a grid mounted on poles. The poles will need to be different heights as the gutter slants down to meet the rain barrels.


Once it reaches the rain barrels, the gutter will become narrower and run straight to a hole on the top of one of the barrels. From there the rainwater will be collected and stored in the barrels.


We already have a solar pump that can be set to automatically pump water to the irrigation system in the garden, which was set up this summer. The solar pump has a solar panel, so the rainwater catchment system will not need electricity of the school. In addition, once the system is up and running the school will not have to provide water for the garden anymore unless there is a serious drought.

Our Proposal to Fund our Rain Catchment SystemStudent_Designed_Rain_Catchment_System_files/Rain%20Catchment%20Proposal.pdf
Our Presentation to the HeadmasterStudent_Designed_Rain_Catchment_System_files/Rain%20Catchment%20Proposal_1.pdf
Our Video 
Explaining the ProjectStudent_Designed_Rain_Catchment_System_files/Rain%20Catchment%20Proposal_2.pdf